Awe & Wonder Consulting and Design of Early Childhood Environments |
||
|---|---|---|
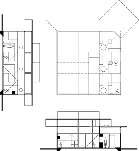
Zero Energy Building: |
||
The building envelope is designed for Net Zero energy consumption. In other words, the building does not consume more energy than it produces. The small footprint and modular nature of the design also allows for incremental expansion. We understand the complexities of the development of design projects. Actualizing projects is a challenge for independent groups committed to exemplary learning environments. We are reaching out to independent and enlightened educators who understand the convergence of alternative learning theory and the true experience of social learning in the context of light filled, uncluttered, and spatially enriched learning environments.
|
||
| © 2012. Awe & Wonder Consultants. Principals Tom Szumlic and Adam Roland. [NCARB, NCIDQ, Architecture/Interior Design] |
The goal and purpose of this program is to: Design learning environments for children; not a warehouse but a meaningful and enriching place: A sensory place: A place where the early memories of childhood are positively established: A place designed not to hinder a single child: A place designed for PLAY. Provide active spaces that are open and inviting: Spaces expressing a sense of AWE AND WONDER through the use of color, scale, texture, and most importantly LIGHT: Spaces that nurture and support. The spaces are to reinforce, nurture, love, and care from adult relationships. Design transition and ancillary spaces that are symbolic of ROUTINE AND RITUAL. Design an environment that celebrates change and transition. Provide an authentic space for the life of children not a cartoon of the “adult” world. Provide a sense of order in the life of the children. Children have an enormous capacity to learn and develop. An ordered environment of carefully chosen materials calls the child to work, concentration, and joy. A crowded or chaotic environment dissipates a child’s energy. Randomness becomes destruction. Therefore we must provide storage that is thoughtfully considered. All spaces should be developmentally and age appropriate, safe, comfortable, accessible, flexible, and cost effective.